Свяжитесь с нами — мы работаем с понедельника по пятницу (10:00-19:00)
Пн/Пт 10:00-19:00

Адаптация фундамента для типового проекта дома

Адаптируйте фундамент для вашего участка
Адаптируйте фундамент для вашего участка

Адаптация фундамента - это пересчет и проектирование основания дома под конкретный земельный участок по данным геологии и топографической съемки. Типовой проект дает универсальное решение, а реальные грунты, уровень грунтовых вод и рельеф у каждого свои. Наша задача сопоставить нагрузки дома с условиями площадки и выдать понятный альбом чертежей и расчетов, по которым подрядчик (строитель) безопасно и экономично построит фундамент.

Зачем нужна адаптация фундамента

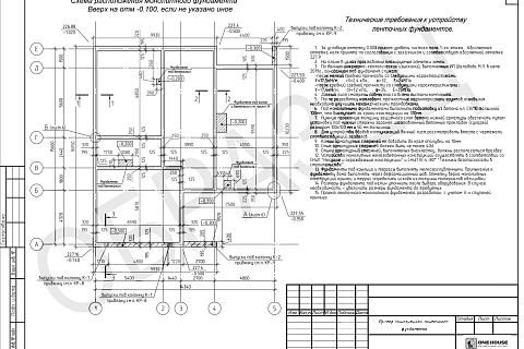
Чаще всего услуга требуется владельцам типовых проектов. В индивидуальном проектировании фундамент изначально считается по вашим данным, отдельная адаптация не нужна. При типовом подходе в проект закладывают «среднее» решение обычно это лента монолитная или сборно-монолитная с ФБС (фундаментными бетонными блоками). Адаптация показывает, какой тип и параметры фундамента будут технически корректными и экономически обоснованными именно для вашего участка. В одних случаях базовая лента подтверждается, в других целесообразно перейти на свайно-ростверковую схему или плиту, если этого требуют грунты и рельеф. Главная ценность надежная работа основания без переплат и рисков трещин, неравномерных осадок.

Процесс адаптации фундамента

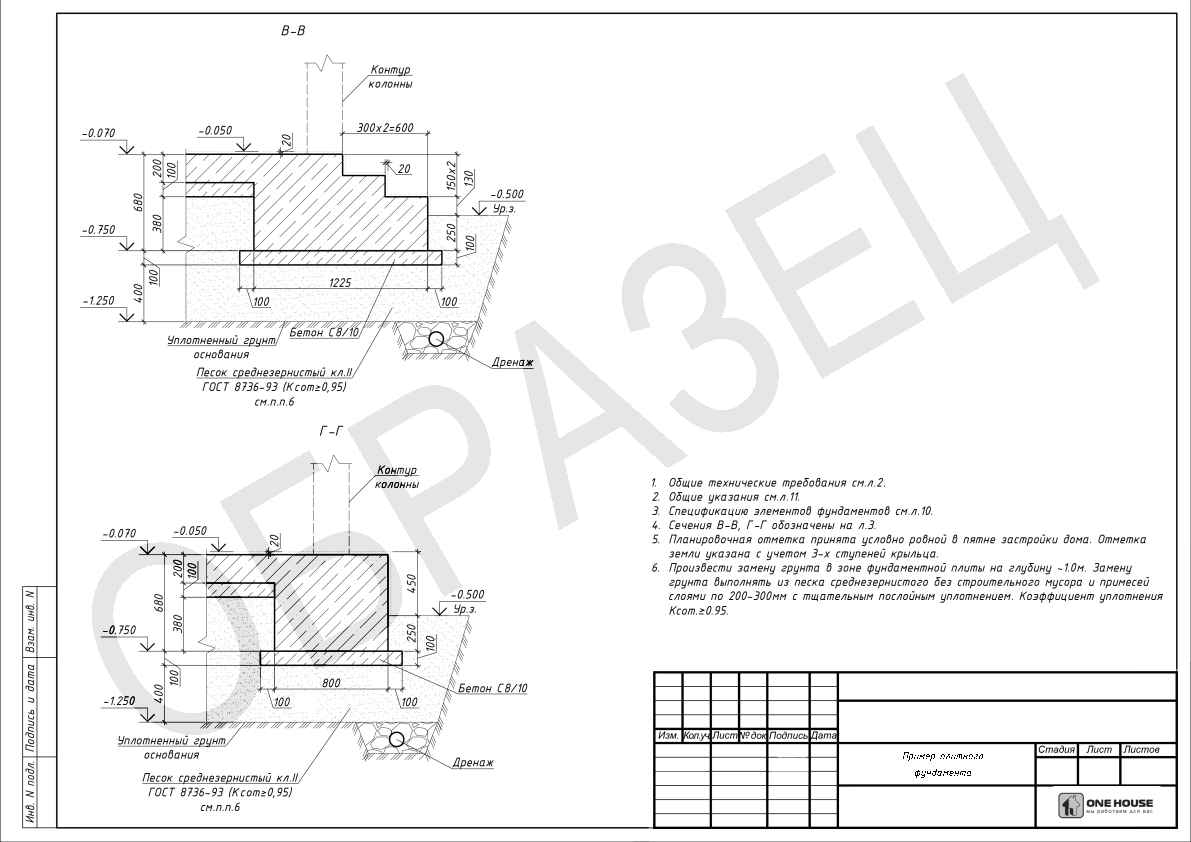
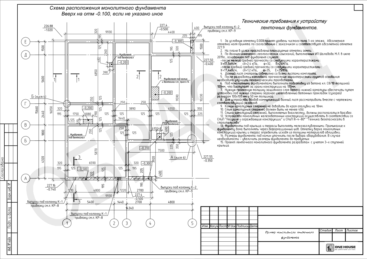
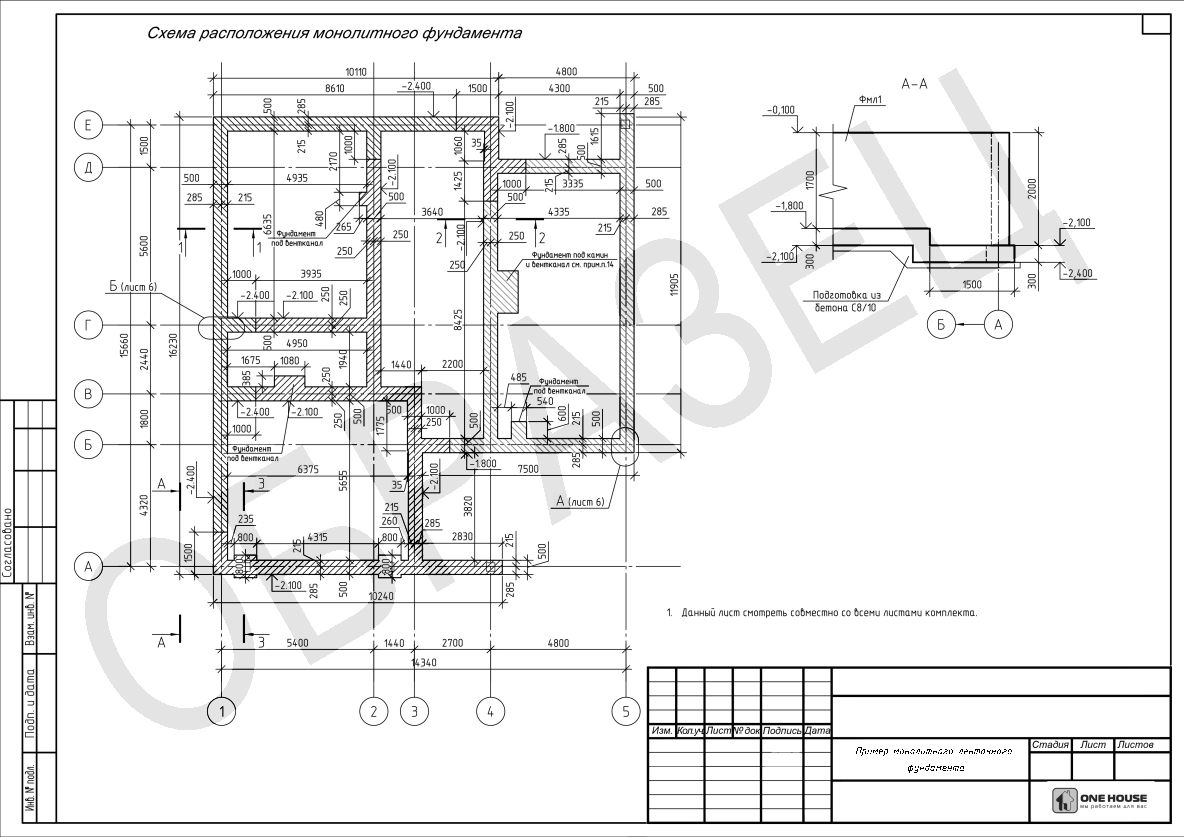
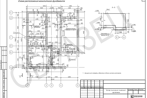
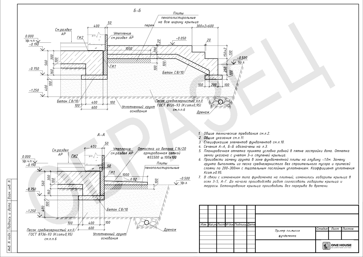
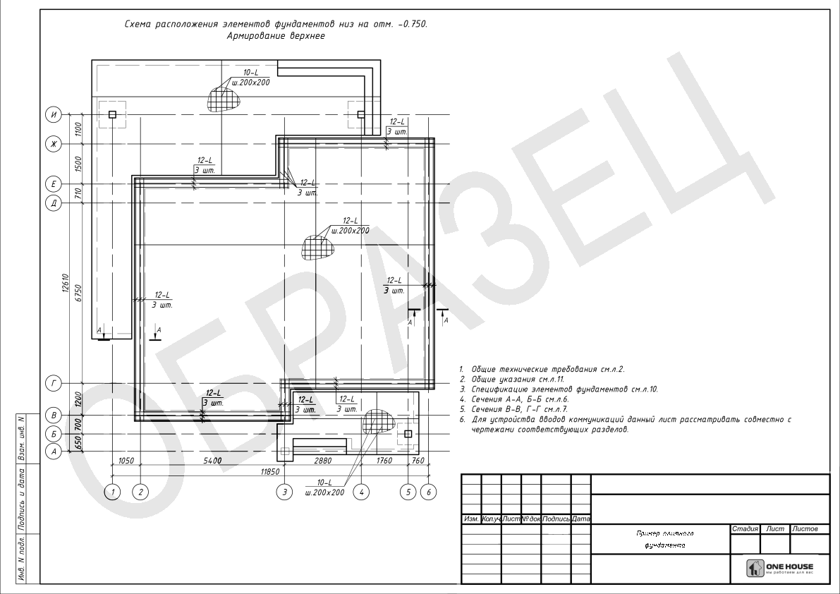
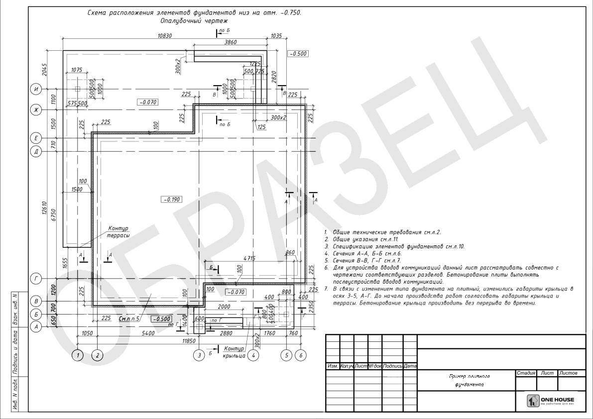
Мы работаем только с участками, которые находятся во владении заказчика (в собственности). Изыскания выполняются при присутствии собственника. Сначала собираем исходные данные геология и топосъемка (если участок имеет перепады высот), архитектурные габариты и посадка дома. Геология отвечает на вопрос из чего состоят грунты, и как они ведут себя под нагрузкой дома. Геодезия показывает рельеф, отметки высот и помогает правильно задать нулевой цикл, подсыпки участка и водоотвод. Скважины рекомендуем бурить в пятне застройки будущего дома, в идеале по углам. Для компактных домов иногда достаточно трех скважин. Если планируется баня или хозблок, добавляем отдельную точку изысканий в зоне этих построек. Скважины привязываются к топосъемке, чтобы отчет был максимально полезен для расчетов. Далее собираем нагрузки от конструкций и воздействий, рассматриваем несколько вариантов фундаментов и выполняем расчеты несущей способности и осадок с учетом глубины промерзания, уровня грунтовых вод и рельефа. Отдельно даем рекомендации по отмостке, дренажу и ливневой системе, чтобы фундамент работал правильно. Итоговый комплект оформляем в альбом с пояснительной запиской, чертежами, узлами, ведомостью объемов и рекомендациями по подготовке основания. Выдаем два бумажных альбома и электронный вариант в PDF формате.

Что вы получите в результате

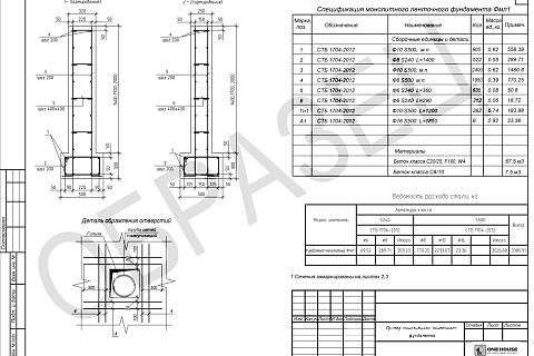
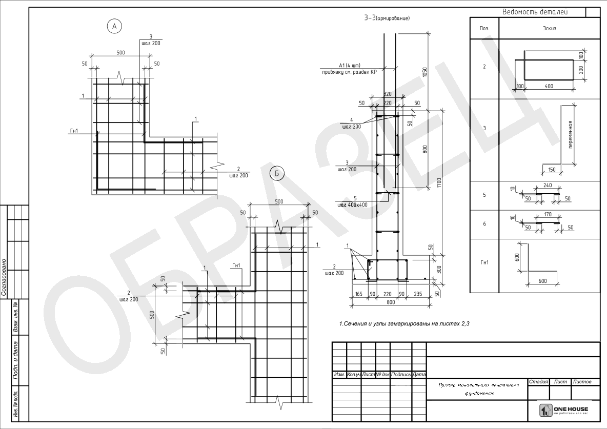
На выходе вы получаете документ, по которому подрядчик (строитель) действительно строит, а не спорит и не гадает. Внутри пояснительная записка с исходными данными и принятыми решениями простым языком, расчетные выкладки в проверяемом виде, чертежи фундамента с узлами и разрезами, ведомость объемов для сметы, рекомендации по подготовке основания, гидроизоляции, ливневке и дренажу. Отдельно фиксируем высотные отметки и решения по нулевому циклу, чтобы избежать ошибок при подсыпках и срезках. При свайно-ростверковом типе фундамента вы получаете схему устройства свай, глубинами и армированием и чертежи ростверка. Для плиты вы получаете схемы армирования и узлы. Формат выдачи два бумажных альбома и электронный PDF формат. С таким результатом всё понятно сразу и заказчику, и самому строителю.

Стоимость услуги

Базовая стоимость адаптации от 850 BYN при наличии геологии и топосъемки и при ровном рельефе. Итоговая цена зависит от сложности рельефа, уровня грунтовых вод, необходимости дренажных решений и срочности. Стандартный срок выполнения при полной исходной информации 10 рабочих дней (2 календарных недели). Ускорение работ возможно за доплату по договоренности, если это технологически оправдано.

*Для удобства восприятия масштаба затрат в тексте могут упоминаться ориентиры в долларах США. Это делается исключительно для понимания порядка сумм. Все расчеты, договоры и платежи по законодательству Республики Беларусь выполняются только в белорусских рублях. Упоминание иностранной валюты носит справочный характер и не является предложением рассчитаться в валюте.

Кейс (пример из практики) для наглядности

Дом около 100 м². В типовом проекте предусмотрена лента с ФБС (бетонными фундаментными блоками). После геологических изысканий и пересчета выбран свайно-ростверковый вариант на буронабивных сваях диаметром 300 мм с ростверком. Итоговая смета на фундамент снизилась ориентировочно с 12 310 до 7 240 долларов США. Затраты на изыскания и адаптацию кратно окупились разницей в сметах, при этом основание работает корректно для данных грунтов и имеет необходимый запас прочности.

Что сделать сейчас

  • Если у вас есть участок и типовой проект пришлите геологию, топосъемку и планы для предварительной оценки состава работ;
  • Если изысканий нет, то мы поможем сформировать задание и организовать геологию с привязкой скважин к топосъемке;
  • Проведем первичную консультацию, подтвердим целесообразность адаптации и предварительный диапазон решений под ваш участок;
  • Если понадобится (как правило, в сложных ситуациях) организуем выезд на участок, чтобы оценить дополнительные факторы влияющие на будущий фундамент;

Не пренебрегайте проектом основания под реальные грунты вашего участка, ведь не бывает «плохих» или «хороших» фундаментов - бывает фундамент, который подходит именно вашему дому и условиям площадки, или не подходит. Сделайте выбор в пользу точного решения: закажите адаптацию фундамента под ваши данные и начните стройку с обоснованного проекта, который работает на надежность, бюджет и спокойствие.

#MORE_PHOTO#
Адаптация фундамента для типового проекта дома
стоимость от 850 BYN
вход на сайт
Сайт 1house.by использует файлы cookie, обрабатываемые вашим браузером. Подробнее об этом вы можете узнать в Политике cookie.
Принять Отклонить