Свяжитесь с нами — мы работаем с понедельника по пятницу (10:00-19:00)
Пн/Пт 10:00-19:00

Двухэтажный дом с плоской кровлей для молодой семейной пары в деревне Мочаны

Минималистичный дом под Минском

Двухэтажный дом с плоской кровлей для молодой семейной пары в деревне Мочаны, фото 1 190,23
команда onehouse 2023 год

Двухэтажный дом с плоской кровлей для молодой семейной пары в деревне Мочаны.

Площадь 247,83 м кв

Пожеланием заказчика было максимально задействовать перепад высот на участке.

В итоге был разработан проект, задумкой которого стала возможность использования верхней и нижней террас на рельефе.

Двухэтажный дом с плоской кровлей для молодой семейной пары в деревне Мочаны, фото 2

«Мы хотели простыми средствами достичь пожеланий заказчика, создать функциональную планировку с возможностью проводить время на большой террасе» 

На нижнюю террасу осуществляется выход из гостиной, часть террасы находится под навесом.

На вторую террасу, которая расположилась наверху холма, можно выйти прямо из дома, из коридора второго этажа. На холме находится зона отдыха под навесом и открытая площадка с кострищем. Важной задачей было увязать отметки высот второго этажа и отметку верха холма. Этого удалось достичь с помощью подбора высоты этажа и вертикальной планировкой участка (подсыпкой либо срезкой грунта).

Двухэтажный дом с плоской кровлей для молодой семейной пары в деревне Мочаны, фото 3

«Таким образом мы постарались максимально задействовать перепад высот, создав много различных зон для отдыха с семьей и друзьями.»

Двухэтажный дом с плоской кровлей для молодой семейной пары в деревне Мочаны, фото 4

Концепция размещения построек на участке

Внешний вид дома можно назвать довольно лаконичным и геометричным, первый этаж полностью выкрашен в черный, второй – из белой штукатурки со вставками деревянного планкена. Выразительность и современность дому придают угловые панорамные окна в гостиной и мастерспальне на втором этаже.

Двухэтажный дом с плоской кровлей для молодой семейной пары в деревне Мочаны, фото 5

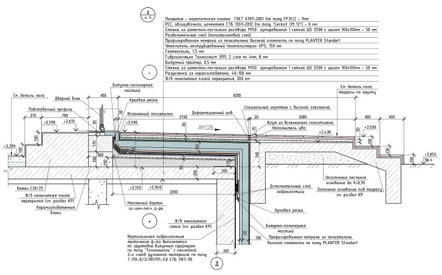
В тех проектах, где покрытие над первым этажом является полом террасы (то есть по ней можно ходить ) следует помнить, что необходимо предусмотреть утепление целого наружного контура здания. В данном случае в качестве утеплителя был выбран экструдированный пенополистерол XPS толщиной 150 мм, который соответствует всем требованиям по изоляции железобетона от проникновения холода в толщу конструкции. Утеплитель уложен на слой разуклонки, стяжки и гидроизоляции. Покрытием террасы является керамическая плитка на клею по цементно-песчаной стяжке.

Двухэтажный дом с плоской кровлей для молодой семейной пары в деревне Мочаны, фото 6

Характеристики здания :

  • Фундамент – ленточный монолитный
  • Стены – керамзитобетонный блок, железобетон в части врезки первого этажа в холм
  • Перекрытия – монолитный железобетон
  • Кровля – ПВХ-мембрана

вход на сайт
Сайт 1house.by использует файлы cookie, обрабатываемые вашим браузером. Подробнее об этом вы можете узнать в Политике cookie.
Принять Отклонить