Свяжитесь с нами — мы работаем с понедельника по пятницу (10:00-19:00)
Пн/Пт 10:00-19:00

Проект дома Z317

Проект комфортного и функционального одноэтажного дома.
Увеличить Зеркальное отражение
Фундамент
ленточный сборно-монолитный
Стены
каменный
Перекрытие
по деревянным балкам
Кровля
цементно-песчаная черепица/металлочерепица/керамическая черепица
146 м²
3 3
Архитектурный проект
700 BYN
Строительный проект
1 500 BYN
Инженерные сети
1 100 BYN
Доставка проекта
0 BYN
Итого:
2 200 BYN
Способы оплаты:

Безналичный расчет, Epos, Ерип

Время подготовки: от 3 дней

Описание

Z317 представляет собой проект комфортного и функционального одноэтажного дома.

Преимущества проекта Z317:

  • Идеальное сочетание функциональности, красоты и великолепного внешнего вида делает проект привлекательным для требовательных застройщиков как молодого, так и старшего поколения.
  • Для оформления экстерьера использованы белая штукатурка, графитовые столбы и деревянные панели, что придает строению элегантный и современный внешний облик.
  • Характерной особенностью здания являются большие площади остекления, используемые во всех помещениях, что приводит к тому, что интерьер становится не только более просторным, но и хорошо освещенным.

Если вы хотите построить современный дом красивый и удобный, стоит обратить внимание на проект Z317. Дом комфортен для проживания с малышами или пожилыми родителями, поскольку отсутствует лестница и риск их травматизма минимален.



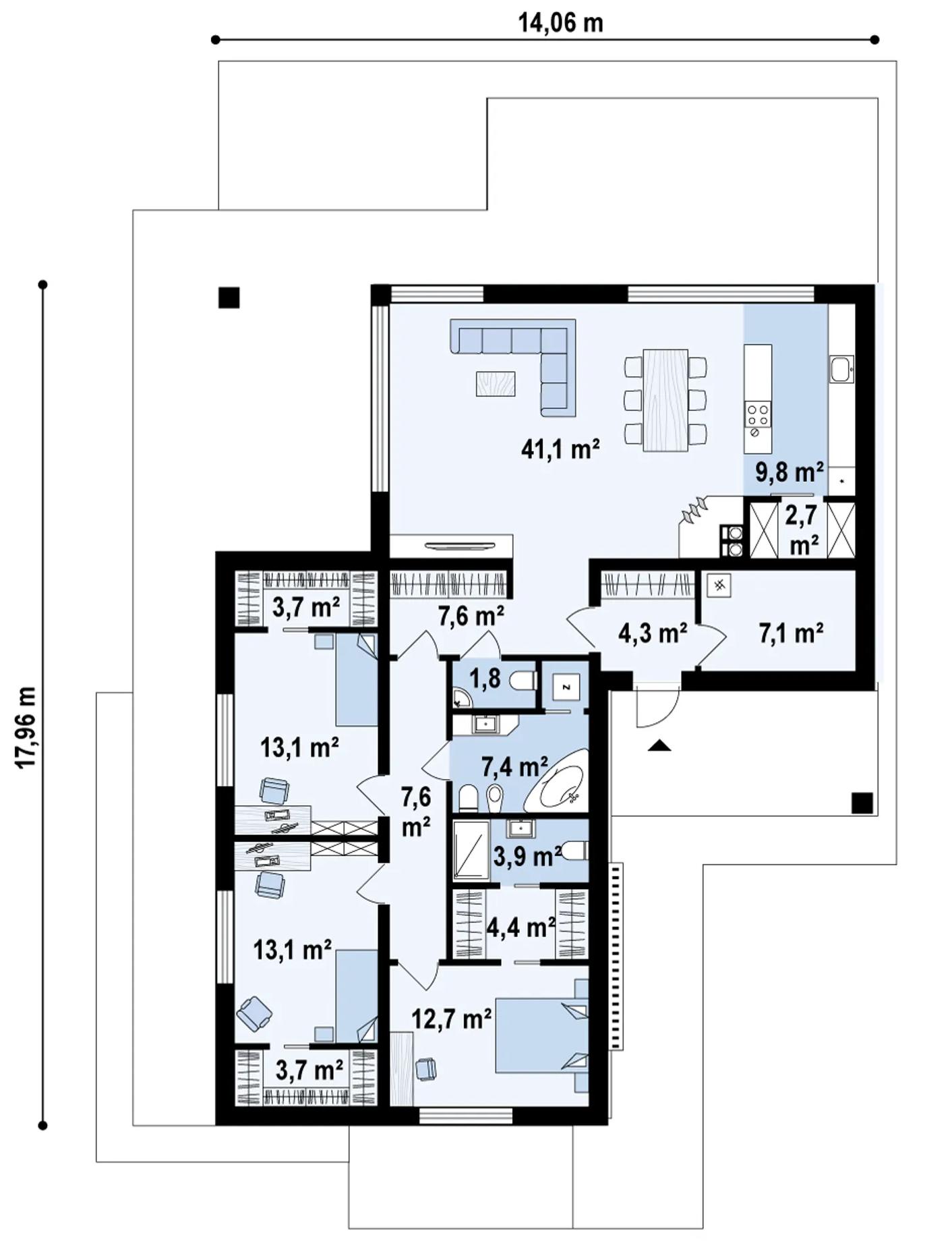
Планировка

Размеры помещений на схемах могут отличаться от реальных. Для получения точных размеров скачайте линейные размеры помещений по кнопке “Скачать линейные размеры” ниже при их наличии или запросите информацию у менеджера компании.
Сделайте этот план дома идеальным

Вам понравился этот проект, но до совершества не хватает некоторых корректировок? Теперь вы можете:

Площадь помещений
1-ый этаж
1. Прихожая
4,8 m²
2. Ванная комната
7,2 m²
3. Котельная
6,2 m²
4. Холл
8,8 m²
5. Гостиная+ столовая
41,4 m²
6. Кухня
9,8 m²
7. Кладовая
2,7 m²
8. Сан. узел
1,8 m²
9. Холл
7,8 m²
10. Спальня
13,2 m²
11. Гардеробная
3,7 m²
12. Спальня
13,5 m²
13. Гардеробная
3,7 m²
14. Спальня
12,8 m²
15. Гардеробная
4,4 m²
16. Сан. узел
3,7 m²
17. Терраса
0,0 m² / 29,8 m²
Площадь дома/общая площадь:
146 m² / 175 m²

Площадь дома: площадь всех помещений здания (теплый контур). Общая площадь: площадь дома 
с добавлением площади балконов и террас, рассчитанных с понижающим коэффициентом 0,3.

Фасады

Давайте проверим!

Подходит ли этот дом для вашего земельного участка?

  • поместится ли выбранный дом на вашем участке
  • каким параметрам должен соответствовать дом согласно местному плану застройки
  • какие еще проекты подходят вашему участку— мы подберем их для вас!
Проверить участок
Одноквартирный
жилой дом
Проект одноквартирного жилого дома типа Zh1
Минск - 2022

Полный проект дома это

Контроль хода работы строителей
Прозрачный выбор подрядчика
Контроль расходования материалов
Возможность сверки/проверки выполненных работ
Понимание количества материалов
Планирование бюджета строительства
Контроль деятельности прораба
Соблюдение регламентов строительства

Что входит в состав полного проекта:

Архитектурный проект
  • Общие данные, технико-экономические показатели, пояснительная записка;
  • Поэтажные планы с экспликацией помещений;
  • Разрезы (поперечный и продольный) с составом ограждающих конструкций
  • План кровли;
  • Фасады в осях с цветовым решением фасадов;
  • 3Д виды.
  • Архитектурные узлы
Строительный проект
  • Общие данные, технические указания и рекомендации по выполнению строительно-монтажных работ;
  • Планы и сечения фундаментов, спецификации;
  • Планы расположения элементов перекрытий. Спецификации;
  • Планы расположения элементов крыши. План стропил. Спецификации;
  • Схемы устройства конструктивных элементов, требующих детального изображения (монолитный пояс, монолитные участки);
  • Чертежи узлов и деталей по всем конструктивным элементам;
  • Спецификация и сечения перемычек;
  • Спецификации заполнения оконных и дверных проемов;
  • Дымовентиляционные каналы;
Инженерные сети

ОВ (отопление и вентиляция):

  • Общие данные;
  • Поэтажные планы со схемами разведения отопления и вентиляции;
  • Схема обвязки котла отопления
  • Технические узлы;
  • Спецификация материалов и оборудования;

ВК (водоснабжение и канализация):

  • Общие данные;
  • Поэтажные планы со схемами разведения трубопроводов холодного и горячего водоснабжения, канализации;
  • Узлы уплотнения трубопроводов, проходящих через строительные конструкции;
  • Схема счетчика воды;
  • Спецификация материалов и оборудования;

ЭР (электротехнические решения):

  • Общие данные;
  • Принципиальная схема ВРУ;
  • План сетей освещения;
  • План силовых сетей;
  • Схема системы уравнения потенциалов;
  • Схема контура заземления;
  • Технические узлы;
  • Спецификация материалов и оборудования;
Вы можете использовать "Полный состав проекта"на любом этапе строительства дома.

Дополнительные услуги

Заказать дополнительные услуги можно во время оформления заказа проекта или по телефону +375 29 120 62 20

Способы и стоимость строительства

Строительство своими силами

Самый дешевый способ

Строительство своими силами может стать источником множества проблем и трудностей. Отсутствие опыта и профессиональных знаний может привести к небезопасным ситуациям на стройке, а также к непредвиденным финансовым затратам из-за ошибок и недостатков в работе.

  • Риски безопасности
  • Финансовые затраты
  • Временные затраты и задержки

Проект со строительством

Самый быстрый и удобный способ

Наша компания обеспечивает профессиональное выполнение всех работ с соблюдением высоких стандартов качества и безопасности, что позволяет вам быть уверенными в надежности и долговечности вашего нового жилища.

  • Профессиональное выполнение работ
  • Экономия времени и усилий
  • Гарантия безопасности и соблюдения стандартов

Вопрос-ответ

Как сделать заказ?

Выбрав заинтересовавший вас проект, вам нужно оформить заказ на нашем сайте, нажав кнопку "заказать" справа от визуализации проекта или по телефону.

Срок готовности проекта с каталога без изменений от 3 рабочих дней.

Почему планы помещений без размеров и где можно посмотреть линейные размеры?

На сайте представлены эскизы, а не сами проекты. Вы можете сделать запрос, нажав на кнопку рядом с планировкой проекта дома "Запросить линейные размеры".

Какой тип фундамента предусмотрен в проекте?

Тип фундамента дома вы можете увидеть в карточке проекта под визуализацией. В большинстве проектов предусматриваемый проектом фундамент ленточный сборно-монолитный. Фундамент включает в себя монолитную подушку и фундаментные блоки. Так же в рамках услуги адаптации фундаментов мы можем разработать и другие типы фундаментов: свайно-ростверковый, монолитную плиту, ленточный монолитный.

Можно внести изменения в проект? Если да, то сколько стоимость?

Внесение изменений возможно в соответствии с вашими эскизами. Стоимость зависит от объёма переработки проектной документации и будет представлена после получения вашего эскиза.

Что подразумевает под собой понятие "изменение в проекте”, что можно менять?

Изменения и доработки проекта, которые не затрагивают объём дома и несущие стены, возможны в рамках типового проекта, если изменений много и они затрагивают множественные изменения объёма дома и несущих конструкций, то лучше сразу разрабатывать индивидуальный проект на основе типового. Примеры несущественных изменений проекта: перенос или изменений перегородок, окон, дверей, высоты потолка, изменение назначения помещений, изменение размеров пола террасы. Существенные изменения типового проекта: перемещение несущих стен и колонн, пропорциональное увеличение площади дома, изменение этажности дома.

На каком языке выпускается проект?

Документация предоставляется на русском языке.

Какая высота от чистого пола до потолка в ваших проектах?

Высота до чистового потолка в наших проектах равна 2,8 метра на 1-ом этаже и 2,7 метра на 2-ом этаже. Если нужна высота потолка больше, то можно поднять крышу без ущерба архитектуре на 1 блок (200-250мм).

Что входит в архитектурно — строительный разделы?

Обязательный перечень документации архитектурного и строительного разделов:

  • 1. Пояснительная записка
  • 2. Архитектурный раздел
  • 2.1. Планы этажей с экспликацией помещений
  • 2.2. План крыши
  • 2.3. Разрезы и состав ограждающих конструкций
  • 2.4. Фасады с таблицей отделки
  • 2.5. Спецификация элементов заполнения проемов •У 2.6. Спецификация и сечения перемычек
  • 2.7. План и экспликация полов
  • 2.8. Архитектурные узлы в конструкциях
  • 3.Конструктивный раздел
  • 3.1. План монолитных фундаментов
  • 3.2. Узлы армирования и сечения
  • 3.3. Чертежи отдельных фундаментов
  • 3.4. План сборных фундаментов
  • 3.5. Схема расположения элементов перекрытия (покрытия)
  • 3.6. Узлы армирования или опоры перекрытия на стены •У 3.7. Схема расположения элементов кровли
  • 3.8. Узлы крепления, сечения, а также чертежи отдельных элементов
  • 3.9. Ведомость расходов стали и бетона
Какой материал стен предусмотрен в проекте?

Наши проекты разработаны под стеновые блоки из газобетона, керамзитобетона или керамического блока, поскольку они являются взаимозаменяемыми. Состав наружной стены представляет собой пирог из блока 375мм и утеплителя 50мм/100мм, внутренние несущие стены — это блок 250мм, перегородки — блок 100мм. Вместо блоков 375мм/250мм/100мм, можно использовать блоки 300/400мм, 300мм, 120/150мм соответственно.

Площади дома
На сайте у нас представлены несколько площадей: площадь теплого контура, общая площадь и жилая площадь.

В верхней части карточки проекта представлена наиболее удобная для восприятия объёма дома: площадь теплого контура
Площадь теплого контура - площадь всех помещений внутри дома, без учёта площадей крылец, террас, навесов, балконов.

Ниже на странице, рядом с планировками представлены площади, которые необходимо указывать по нормам: жилая и общая площадь этажа:
Жилая площадь - это сумма площадей всех жилых комнат, предназначенных для проживания, а именно: спален, гостиных и детских. К ней не относятся кухни, санузлы, коридоры, кладовые, гардеробные и другие подсобные помещения. 
Общая площадь -  площадь дома с добавлением площади балконов и террас, рассчитанных с понижающим коэффициентом 0,3 (коэффициент, который приводит площадь балкона, террасы или лоджии, к площади полноценного помещения дома).
Свяжитесь с нами
Остались вопросы?

Свяжитесь с нами и мы ответим на все ваши вопросы.
Мы работаем с понедельника по пятницу (10:00-19:00)

Закажите звонок

+375 (29) 120-62-20

onehouseby@gmail.com

* Информация о товаре предоставлена для ознакомления и не является публичной офертой. Производители оставляют за собой право изменять внешний вид, характеристики и комплектацию товара, предварительно не уведомляя потребителей. Просим вас отнестись с пониманием к данному факту и заранее приносим извинения за возможные неточности в описании и фотографиях товара. Будем благодарны вам за сообщение об ошибках — это поможет сделать наш каталог еще точнее!

вход на сайт
Сайт 1house.by использует файлы cookie, обрабатываемые вашим браузером. Подробнее об этом вы можете узнать в Политике cookie.
Принять Отклонить