Свяжитесь с нами — мы работаем с понедельника по пятницу (10:00-19:00)
Пн/Пт 10:00-19:00

Проект дома ZH63

Двухэтажный дом с 5ю комнатами.
Увеличить Зеркальное отражение
Фундамент
ленточный монолитный
Стены
каменные
Перекрытие
монолитное
Кровля
металлочерепица / фальцевая / гибкая
330 м²
4 3
Архитектурный проект
1 000 BYN
Строительный проект
1 800 BYN
Инженерные сети
1 300 BYN
Доставка проекта
0 BYN
Итого:
2 800 BYN
Способы оплаты:

Безналичный расчет, Epos, Ерип

Время подготовки: от 7 дней

Планировка

Размеры помещений на схемах могут отличаться от реальных. Для получения точных размеров скачайте линейные размеры помещений по кнопке “Скачать линейные размеры” ниже при их наличии или запросите информацию у менеджера компании.
Сделайте этот план дома идеальным

Вам понравился этот проект, но до совершества не хватает некоторых корректировок? Теперь вы можете:

Площадь помещений
1-ый этаж
1. Тамбур
8,40 m²
2. Гардероб
6,51 m²
3. Холл + лестница
22,86 m²
4. Кухня
19,80 m²
5. Столовая
25,65 m²
6. Гостиная
44,40 m²
7. Гостевой с/у
6,73 m²
8. Кабинет/гостевая комната
23,37 m²
9. Мини-котельная
9,95 m²
10. Гараж
24,20 m²
11. Терраса
12,39(41,30) m²

Площадь этажа/общая площадь:
67,77 m² / 204,26 m²

Площадь дома/общая площадь:
145.75 m² / 330 m²
Площадь этажа/общая площадь:
67,77 m² / 204,26 m²

Площадь дома/общая площадь:
145.75 m² / 330 m²
Сделайте этот план дома идеальным

Вам понравился этот проект, но до совершества не хватает некоторых корректировок? Теперь вы можете:

Площадь помещений
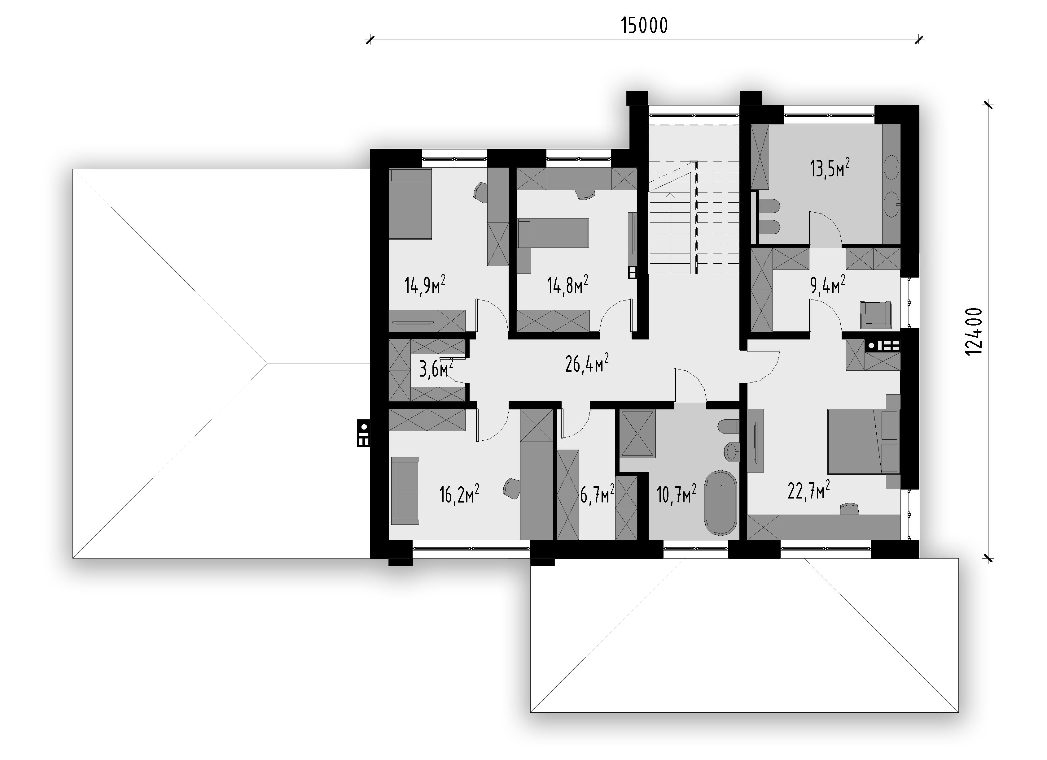
2-ой этаж
1. Холл +лестница
26,40 m²
2. Детская
14,76 m²
3. Детская
14,85 m²
4. Кладовая
3,57 m²
5. Кабинет
16,20 m²
6. Гардероб
6,73 m²
7. Ванная комната
10,72 m²
8. Спальня
22,74 m²
9. Гардероб
9,43 m²
10. Ванная комната
13,53 m²

Площадь этажа/общая площадь:
77,98 m² / 138,93 m²

Площадь дома/общая площадь:
145.75 m² / 330 m²
Площадь этажа/общая площадь:
77,98 m² / 138,93 m²

Площадь дома/общая площадь:
145.75 m² / 330 m²

Фасады

Давайте проверим!

Подходит ли этот дом для вашего земельного участка?

  • поместится ли выбранный дом на вашем участке
  • каким параметрам должен соответствовать дом согласно местному плану застройки
  • какие еще проекты подходят вашему участку— мы подберем их для вас!
Проверить участок
Одноквартирный
жилой дом
Проект одноквартирного жилого дома типа Zh1
Минск - 2022

Полный проект дома это

Контроль хода работы строителей
Прозрачный выбор подрядчика
Контроль расходования материалов
Возможность сверки/проверки выполненных работ
Понимание количества материалов
Планирование бюджета строительства
Контроль деятельности прораба
Соблюдение регламентов строительства

Что входит в состав полного проекта:

Архитектурный проект
  • Общие данные, технико-экономические показатели, пояснительная записка;
  • Поэтажные планы с экспликацией помещений;
  • Разрезы (поперечный и продольный) с составом ограждающих конструкций
  • План кровли;
  • Фасады в осях с цветовым решением фасадов;
  • 3Д виды.
  • Архитектурные узлы
Строительный проект
  • Общие данные, технические указания и рекомендации по выполнению строительно-монтажных работ;
  • Планы и сечения фундаментов, спецификации;
  • Планы расположения элементов перекрытий. Спецификации;
  • Планы расположения элементов крыши. План стропил. Спецификации;
  • Схемы устройства конструктивных элементов, требующих детального изображения (монолитный пояс, монолитные участки);
  • Чертежи узлов и деталей по всем конструктивным элементам;
  • Спецификация и сечения перемычек;
  • Спецификации заполнения оконных и дверных проемов;
  • Дымовентиляционные каналы;
Инженерные сети

ОВ (отопление и вентиляция):

  • Общие данные;
  • Поэтажные планы со схемами разведения отопления и вентиляции;
  • Схема обвязки котла отопления
  • Технические узлы;
  • Спецификация материалов и оборудования;

ВК (водоснабжение и канализация):

  • Общие данные;
  • Поэтажные планы со схемами разведения трубопроводов холодного и горячего водоснабжения, канализации;
  • Узлы уплотнения трубопроводов, проходящих через строительные конструкции;
  • Схема счетчика воды;
  • Спецификация материалов и оборудования;

ЭР (электротехнические решения):

  • Общие данные;
  • Принципиальная схема ВРУ;
  • План сетей освещения;
  • План силовых сетей;
  • Схема системы уравнения потенциалов;
  • Схема контура заземления;
  • Технические узлы;
  • Спецификация материалов и оборудования;
Вы можете использовать "Полный состав проекта"на любом этапе строительства дома.

Дополнительные услуги

Заказать дополнительные услуги можно во время оформления заказа проекта или по телефону +375 29 120 62 20

Способы и стоимость строительства

Строительство своими силами

Самый дешевый способ

Строительство своими силами может стать источником множества проблем и трудностей. Отсутствие опыта и профессиональных знаний может привести к небезопасным ситуациям на стройке, а также к непредвиденным финансовым затратам из-за ошибок и недостатков в работе.

  • Риски безопасности
  • Финансовые затраты
  • Временные затраты и задержки

Проект со строительством

Самый быстрый и удобный способ

Наша компания обеспечивает профессиональное выполнение всех работ с соблюдением высоких стандартов качества и безопасности, что позволяет вам быть уверенными в надежности и долговечности вашего нового жилища.

  • Профессиональное выполнение работ
  • Экономия времени и усилий
  • Гарантия безопасности и соблюдения стандартов

Вопрос-ответ

Как сделать заказ?

Выбрав заинтересовавший вас проект, вам нужно оформить заказ на нашем сайте, нажав кнопку "заказать" справа от визуализации проекта или по телефону.

Срок готовности проекта с каталога без изменений от 3 рабочих дней.

Почему планы помещений без размеров и где можно посмотреть линейные размеры?

На сайте представлены эскизы, а не сами проекты. Вы можете сделать запрос, нажав на кнопку рядом с планировкой проекта дома "Запросить линейные размеры".

Какой тип фундамента предусмотрен в проекте?

Тип фундамента дома вы можете увидеть в карточке проекта под визуализацией. В большинстве проектов предусматриваемый проектом фундамент ленточный сборно-монолитный. Фундамент включает в себя монолитную подушку и фундаментные блоки. Так же в рамках услуги адаптации фундаментов мы можем разработать и другие типы фундаментов: свайно-ростверковый, монолитную плиту, ленточный монолитный.

Можно внести изменения в проект? Если да, то сколько стоимость?

Внесение изменений возможно в соответствии с вашими эскизами. Стоимость зависит от объёма переработки проектной документации и будет представлена после получения вашего эскиза.

Что подразумевает под собой понятие "изменение в проекте”, что можно менять?

Изменения и доработки проекта, которые не затрагивают объём дома и несущие стены, возможны в рамках типового проекта, если изменений много и они затрагивают множественные изменения объёма дома и несущих конструкций, то лучше сразу разрабатывать индивидуальный проект на основе типового. Примеры несущественных изменений проекта: перенос или изменений перегородок, окон, дверей, высоты потолка, изменение назначения помещений, изменение размеров пола террасы. Существенные изменения типового проекта: перемещение несущих стен и колонн, пропорциональное увеличение площади дома, изменение этажности дома.

На каком языке выпускается проект?

Документация предоставляется на русском языке.

Какая высота от чистого пола до потолка в ваших проектах?

Высота до чистового потолка в наших проектах равна 2,8 метра на 1-ом этаже и 2,7 метра на 2-ом этаже. Если нужна высота потолка больше, то можно поднять крышу без ущерба архитектуре на 1 блок (200-250мм).

Что входит в архитектурно — строительный разделы?

Обязательный перечень документации архитектурного и строительного разделов:

  • 1. Пояснительная записка
  • 2. Архитектурный раздел
  • 2.1. Планы этажей с экспликацией помещений
  • 2.2. План крыши
  • 2.3. Разрезы и состав ограждающих конструкций
  • 2.4. Фасады с таблицей отделки
  • 2.5. Спецификация элементов заполнения проемов •У 2.6. Спецификация и сечения перемычек
  • 2.7. План и экспликация полов
  • 2.8. Архитектурные узлы в конструкциях
  • 3.Конструктивный раздел
  • 3.1. План монолитных фундаментов
  • 3.2. Узлы армирования и сечения
  • 3.3. Чертежи отдельных фундаментов
  • 3.4. План сборных фундаментов
  • 3.5. Схема расположения элементов перекрытия (покрытия)
  • 3.6. Узлы армирования или опоры перекрытия на стены •У 3.7. Схема расположения элементов кровли
  • 3.8. Узлы крепления, сечения, а также чертежи отдельных элементов
  • 3.9. Ведомость расходов стали и бетона
Какой материал стен предусмотрен в проекте?

Наши проекты разработаны под стеновые блоки из газобетона, керамзитобетона или керамического блока, поскольку они являются взаимозаменяемыми. Состав наружной стены представляет собой пирог из блока 375мм и утеплителя 50мм/100мм, внутренние несущие стены — это блок 250мм, перегородки — блок 100мм. Вместо блоков 375мм/250мм/100мм, можно использовать блоки 300/400мм, 300мм, 120/150мм соответственно.

Площади дома
На сайте у нас представлены несколько площадей: площадь теплого контура, общая площадь и жилая площадь.

В верхней части карточки проекта представлена наиболее удобная для восприятия объёма дома: площадь теплого контура
Площадь теплого контура - площадь всех помещений внутри дома, без учёта площадей крылец, террас, навесов, балконов.

Ниже на странице, рядом с планировками представлены площади, которые необходимо указывать по нормам: жилая и общая площадь этажа:
Жилая площадь - это сумма площадей всех жилых комнат, предназначенных для проживания, а именно: спален, гостиных и детских. К ней не относятся кухни, санузлы, коридоры, кладовые, гардеробные и другие подсобные помещения. 
Общая площадь -  площадь дома с добавлением площади балконов и террас, рассчитанных с понижающим коэффициентом 0,3 (коэффициент, который приводит площадь балкона, террасы или лоджии, к площади полноценного помещения дома).
Свяжитесь с нами
Остались вопросы?

Свяжитесь с нами и мы ответим на все ваши вопросы.
Мы работаем с понедельника по пятницу (10:00-19:00)

Закажите звонок

+375 (29) 120-62-20

onehouseby@gmail.com

* Информация о товаре предоставлена для ознакомления и не является публичной офертой. Производители оставляют за собой право изменять внешний вид, характеристики и комплектацию товара, предварительно не уведомляя потребителей. Просим вас отнестись с пониманием к данному факту и заранее приносим извинения за возможные неточности в описании и фотографиях товара. Будем благодарны вам за сообщение об ошибках — это поможет сделать наш каталог еще точнее!

вход на сайт
Сайт 1house.by использует файлы cookie, обрабатываемые вашим браузером. Подробнее об этом вы можете узнать в Политике cookie.
Принять Отклонить